Description
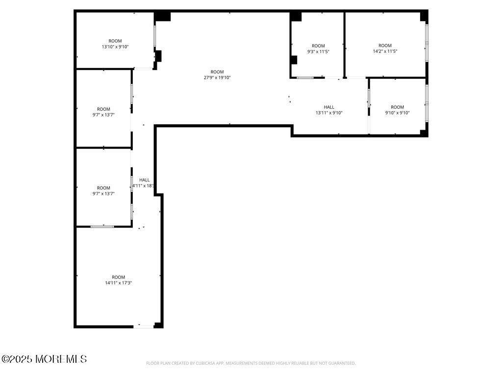
Well-maintained professional building in the heart of Downtown Freehold with multiple office suites available. Ideal for medical, legal, financial, tech, and other professional uses. Walkable location near the County Courthouse, County Offices, Hall of Records, restaurants, and shops. Suite 202 (2,350 SF - 2nd Floor): 6 private offices + open space. Suite 301 (1,950 SF - 3rd Floor): 5 private offices + open space. Suite 302 (1,720 SF - 3rd Floor): 2 private offices + open space. Option: Suites 301 & 302 can be combined for 3,670 SF. Asking: $18/SF + $3/SF CAM. 5-year term preferred Prime downtown location with strong foot traffic, elevator access, and professional common areas. Ideal opportunity for any business seeking quality space in Freehold's central business district
-
0BEDS
-
N/AACRES
-
0BATHS
-
01/2 BATHS
-
2,350SQFT
-
$2$/SQFT
School Ratings & Info
Description
Well-maintained professional building in the heart of Downtown Freehold with multiple office suites available. Ideal for medical, legal, financial, tech, and other professional uses. Walkable location near the County Courthouse, County Offices, Hall of Records, restaurants, and shops. Suite 202 (2,350 SF - 2nd Floor): 6 private offices + open space. Suite 301 (1,950 SF - 3rd Floor): 5 private offices + open space. Suite 302 (1,720 SF - 3rd Floor): 2 private offices + open space. Option: Suites 301 & 302 can be combined for 3,670 SF. Asking: $18/SF + $3/SF CAM. 5-year term preferred Prime downtown location with strong foot traffic, elevator access, and professional common areas. Ideal opportunity for any business seeking quality space in Freehold's central business district
© 2026 Monmouth-Ocean MLS. IDX information is provided exclusively for consumers' personal, non-commercial use and may not be used for any purpose other than to identify prospective properties consumers may be interested in purchasing. Data is deemed reliable but is not guaranteed accurate by the MLS or The CG Group | RE/MAX Revolution. Data last updated 2026-02-06T16:19:16.

Listing information © 2026 Monmouth-Ocean MLS. Listing provided courtesy of Raymond Epshteyn of Keller Williams Realty Central Monmouth: 732-945-5253.